НАРДИ

ДВУХЭТАЖНЫЙ ЖИЛОЙ ДОМ В СТИЛЕ ФАХВЕРК

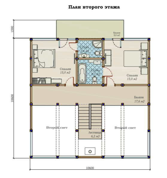
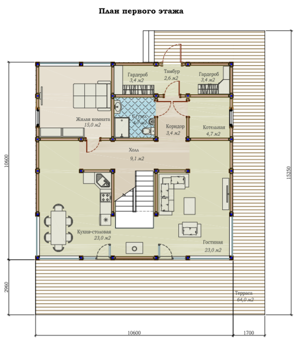
Стильный жилой дом c панорамным остеклением и вторым светом для круглогодичного проживания. Планировка и дизайн дома выполнены в стиле «ФАХВЕРК». Это хороший выбор готового дизайна из нашей коллекции. Здесь есть все необходимые помещения: тамбур, гардеробная комната, техническое помещение, котельная, три санузла, кухня-гостиная, три жилых комнаты, балкон и две просторных террасы.

Получить подробную спецификацию дома

В домокомплект входит:

Планировка

160

м²

2

этажа

3

спальни

3

Санузла

Дзержинское ш.7/7, Котельники, д.7

+74952202457

Хочу такой дом

Характеристики

Площадь дома: 160м²

Габариты: 10,4м × 10,4м

Спальни: 3

Цена: 17 600 000 руб.