МОДЕРН

ОДНОЭТАЖНЫЙ ЖИЛОЙ ДОМ В СТИЛЕ ФАХВЕРК

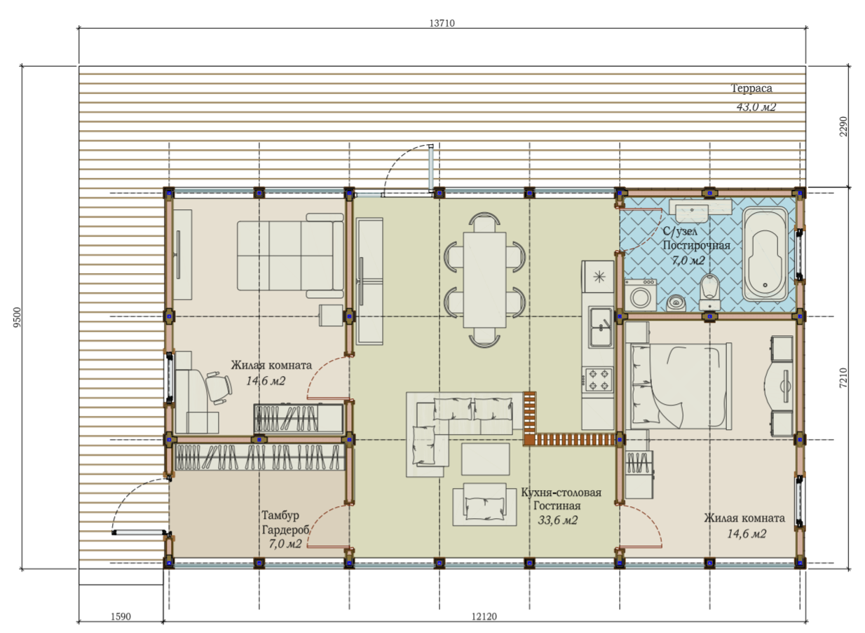
Небольшой одноэтажный жилой дом для молодой семьи. Один из самых популярных домов из серии одноэтажных фахверков c панорамным остеклением. Не смотря на свои небольшие размеры дом пригоден для круглогодичного проживания с набором всех необходимых помещений: тамбур с гардеробом, просторный санузел, большая кухня-столовая, две жилых комнаты и просторная терраса.
Домокомплект выполнен в максимальной заводской готовности с наружной и внутренней отделкой.

Получить подробную спецификацию дома

В домокомплект входит:

Планировка

87

м²

1

этаж

2

спальни

1

Санузел

Дзержинское ш.7/7, Котельники, д.7

+74952202457

Хочу такой дом

Характеристики

Площадь дома: 87м²

Площадь застройки: 130м²

Площадь террасы: 43м²

Жилые комнаты: 2

Кухня-столовая: 1

Санузел: 1

Цена: 9 570 000 руб.