ИРОН

ДВУХЭТАЖНЫЙ ЖИЛОЙ ДОМ В СТИЛЕ ФАХВЕРК

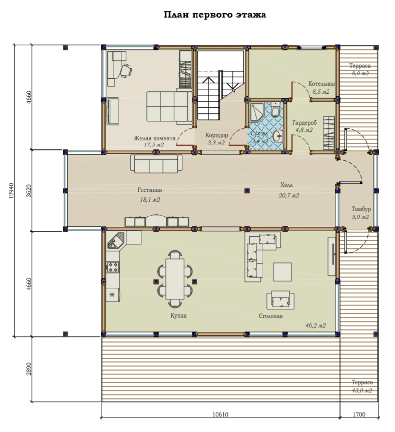
Просторный жилой дом для большой семьи с круглогодичным проживанием. Планировка и дизайн дома выполнены в стиле «ФАХВЕРК» c панорамным остеклением и вторым светом. Это прекрасный выбор готового проекта из нашей коллекции. Здесь есть все необходимые помещения: тамбур, гардеробная комната, техническое помещение, котельная, три санузла, кухня-гостиная, три спальни и одна жилая комната для гостей, просторный балкон со стеклянным ограждением и две больших террасы.

Получить подробную спецификацию дома

В домокомплект входит:

Планировка

250

м²

2

этажа

4

спальни

3

Санузла

Дзержинское ш.7/7, Котельники, д.7

+74952202457

Хочу такой дом

Характеристики

Площадь: 250м²

Габариты: 14м x 13м

Спальни: 4

Цена: 27 500 000 руб.